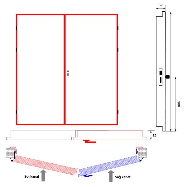
Konteyner kapıları

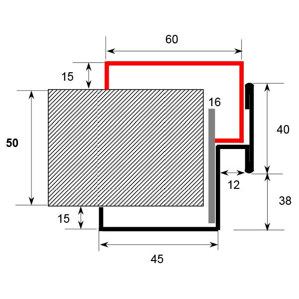
Kanat gövdesi 0,5 mm ve 0,8 mm Dx51 kalite min.100 gr/m³ galvanizli sac Kasa sac kalınlığı 1,0 mm ve 1,2 mm Dx51 kalite min.100 gr/m³ galvanizli sac 16 DNS Strafor (EPS) dolgu veya 60-80-100-120 DNS Taşyünü levha Ayarlanabilir körüklü Fitilli veya Sabit Fitilli kasa sistemi Soğuk Hava contası 3 Adet ayarlanabilir menteşe Kasa sabitleme delikleri Toz ve ses girmesini engelleyici 3 Binili veya 4 binili Kanat ve Kasa Sistemi Kanat içi omega güçlendirici Menteşe ve Kilit yerleri güçlendirici
#
#
#
#
#
#
#
#
#
#
#
#
#